Skip to content
Home
Tenant
Representation
Property
Listings
Emerging Brand
Development
In the
News
About
Us
Contact
Us
Home
Tenant
Representation
Property
Listings
Emerging Brand
Development
In the
News
About
Us
Contact
Us
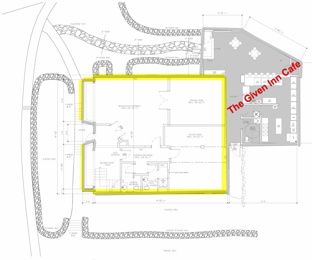
4 Old Mill Road
Redding,
Connecticut
Lease
Retail/Office or Fitness Space
1,578
SF
Contact Brokers
Penny P. Wickey
(203) 222-4194 –
Email
Nate Greenberg
(203) 222-4189 –
Email
Flyer
Demographics
Site/Floor Plan